Raksturojums | |
|---|---|
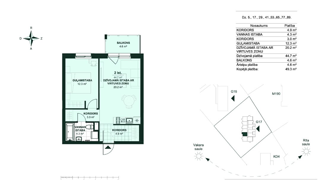
| ID | 4456753 |
| Istabas | 2 |
| Platība | 49.3 m² |
| Ārtelpa | Balkons |
| Ārtelpas platība | 4.6 m² |
| Stāvs | 5 |
| Stāvi | 9 |
Vispārīgi | |
|---|---|
| Mājas sērija | jaunais projekts |
| Lifts | jā |
| Papildu platība | mantu glabātuve |
Raksturojums | |
|---|---|
| ID | 4456753 |
| Istabas | 2 |
| Platība | 49.3 m² |
| Ārtelpa | Balkons |
| Ārtelpas platība | 4.6 m² |
| Stāvs | 5 |
| Stāvi | 9 |
Vispārīgi | |
|---|---|
| Mājas sērija | jaunais projekts |
| Lifts | jā |
| Papildu platība | mantu glabātuve |
| Uzkopšana | |
| Remonts | |
| Mēbeļu/tehnikas pārvadājumi |
| Arhitekts | |
| Interjera dizains | |
| Jurista konsultācija |