Ievietot sludinājumu

174 400 €
2 695.52 €/m²
Liepājas iela 37c-A 28, Bieriņi
Rīga

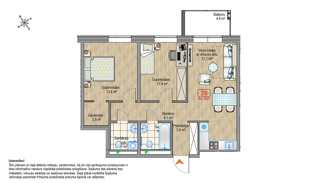
  • 64.7
  • 3
  • 4/4
Jaunais projekts

674 €/mēn.

Pirmā iemaksa26 160 €(15%)
Termiņš
Pieteikties konsultācijai
Vienā no Rīgas zaļākajām un klusākajām savrupmāju apkaimēm, pavisam netālu no Āgenskalna – Bieriņos – tapis jauns projekts ar nosaukumu
“Grafīts”. Svaiga gaisa piepildītā miera oāze Bieriņi robežojas ar Pleskodāles, Āgenskalna, Torņakalna un Atgāzenes apkaimēm un Mārupes pagastu. Lakonisko, tomēr poētisko nosaukumu projekts guvis, iedvesmojoties no ēkas fasādes, – eleganti tumšpelēki toņi, mierīga un vienkārša arhitektūra. Kā ar zīmuli uzskicēta māju sajūta, kuru ar dzīvespriecīgu saturu pavisam drīz piepildīs tās iedzīvotāji.

“Grafītam” piemīt visas YIT projektiem raksturīgās kvalitātes – pārdomāti un ergonomiski plānojumi, augstas
klases apdares materiāli, energoefektīvi risinājumi, ērtas autostāvvietas, labiekārtots pagalms.
Četrstāvīgajā “Grafītā” izveidoti 72 divu, trīs un četristabu dzīvokļi ar iebūvēta skapja telpu. Daļai dzīvokļu pieejamas
divas pilnībā labiekārtotas vannas istabas – ar dušu un vannu. Katram dzīvoklim ir savs balkons, kas ļauj
pilnībā izbaudīt zaļās apkaimes priekšrocības un vienlaikus rada privātmājas sajūtu. Iegādei pieejamas gan noliktavas telpas, gan auto novietnes pagalmā un pazemes stāvā.
Pēdējo reizi atjaunots: 26.01.2026, 12:51
VIP attīstītājs
YIT LATVIJA, SIA logoUz kompāniju
Vienā no Rīgas zaļākajām un klusākajām savrupmāju apkaimēm, pavisam netālu no Āgenskalna – Bieriņos – tapis jauns projekts ar nosaukumu
“Grafīts”. Svaiga gaisa piepildītā miera oāze Bieriņi robežojas ar Pleskodāles, Āgenskalna, Torņakalna un Atgāzenes apkaimēm un Mārupes pagastu. Lakonisko, tomēr poētisko nosaukumu projekts guvis, iedvesmojoties no ēkas fasādes, – eleganti tumšpelēki toņi, mierīga un vienkārša arhitektūra. Kā ar zīmuli uzskicēta māju sajūta, kuru ar dzīvespriecīgu saturu pavisam drīz piepildīs tās iedzīvotāji.

“Grafītam” piemīt visas YIT projektiem raksturīgās kvalitātes – pārdomāti un ergonomiski plānojumi, augstas
klases apdares materiāli, energoefektīvi risinājumi, ērtas autostāvvietas, labiekārtots pagalms.
Četrstāvīgajā “Grafītā” izveidoti 72 divu, trīs un četristabu dzīvokļi ar iebūvēta skapja telpu. Daļai dzīvokļu pieejamas
divas pilnībā labiekārtotas vannas istabas – ar dušu un vannu. Katram dzīvoklim ir savs balkons, kas ļauj
pilnībā izbaudīt zaļās apkaimes priekšrocības un vienlaikus rada privātmājas sajūtu. Iegādei pieejamas gan noliktavas telpas, gan auto novietnes pagalmā un pazemes stāvā.
ĪPAŠUMA ATSKAITE
  • Informācija par īpašumu, vēsturiskie darījumi, sludinājumi
  • Dzīvokļa vērtība, kas iegūta no līdzīgiem darījumiem
  • Zemesgrāmatas informācija
Raksturojums
ID
2724826
Īpašuma stāvoklis
Jauns
Istabas
3
Platība
64.7 m²
Ārtelpa
Balkons
Stāvs
4
Stāvi
4
Īpašumtiesības
reģistrēts īpašumu reģistrā
Cena
Cena
174 400 €
Cena / m²
2695,52  €/m²
Vispārīgi
Celšanas gads
2025
Lifts

Hipotekārā kredīta kalkulators

674 €/mēn.

Pirmā iemaksa26 160 €(15%)
Termiņš
Pieteikties konsultācijai
Pieejamie pakalpojumi
Uzkopšana
Remonts
Mēbeļu/tehnikas pārvadājumi
Arhitekts
Interjera dizains
Jurista konsultācija
VIP attīstītājs

Liene Andrule

Uz profilu
YIT LATVIJA, SIA