Ievietot sludinājumu

78 000 €
2 015.50 €/m²
Ēvalda Valtera iela 44-1, Dreiliņi
Rīga

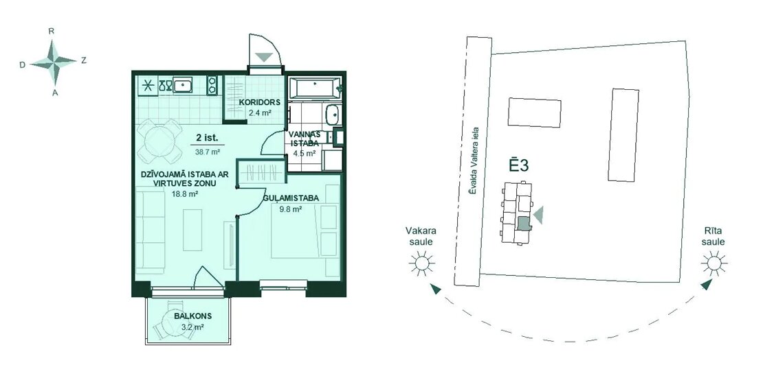
  • 38.7
  • 2
  • 1/6
Jaunais projekts

307 €/mēn.

Pirmā iemaksa11 700 €(15%)
Termiņš
Pieteikties konsultācijai
Dreiliņi atrodas Rīgas austrumu daļā un robežojas ar Pļavnieku, Purvciema, Mežciema un Juglas, kā arī Ropažu novada teritoriju. Pateicoties izdevīgajam novietojumam un aktīvajai attīstībai, Dreiliņus uzskata par ļoti perspektīvu rajonu, kurā baudīt mierpilnu dzīves ritmu. Tas piedāvā brīnišķīgu iespēju nezaudēt saikni ar Rīgas centrā notiekošo un pilsētas dinamiku, vienlaikus ļaujot būt nepārtrauktā dabas tuvumā un izbaudīt visas tās sniegtās iespējas. Īpaši piemērota šī apkaime būs jaunajām ģimenēm un tiem, kam pilsētā burzma šķiet par skaļu, bet no aprites izkrist negribas.

Plašs jauno mājokļu ciemats strauji augošā apkaimē
Klusā, zaļas teritorijas iekļautā Dreiliņu apkaimes daļā to mūsu līdz šim lielākais jaunais projekts Valterciems. Tas savu skanīgo nosaukumu ieguvis, godājot 2004. gadā atklāto leģendārā aktiera Ēvalda Valtera ielu, kas ved uz plašo daudzdzīvokļu māju ciematu.

Teritorijā starp Ēvalda Valtera un Kaivas ielām piecās kārtās paredzēts uzbūvēt 15 sešstāvu mājas ar kopumā vairāk nekā 800 mūsdienīgiem un energoefektīviem 2 līdz 4 istabu dzīvokļiem.

Pirmo kārtu jeb pirmo iekšējo kvartālu Ēvalda Valtera ielā veidos trīs sešstāvu ēkas ar kopumā 162 dzīvokļiem. To plānojam pabeigt līdz 2027. gada beigām. Savukārt visu projektu ar 15 ēkām paredzēts pabeigt līdz 2033. gadam.

Pirmo sešstāvu māju Ēvalda Valtera ielā 44A, kurai piešķirts nosaukums Čakstes, sākām būvēt 2024. gada rudenī un pabeidzām 2025 gada rudenī, vienlaikus teritorijā atklājot tēlnieka Pētera Ķimša vides objektu Balodis. Gan jaunā ciemata ēkas, gan labiekārtojumu caurvīs pievilcīga, harmoniskas dabas tematika un putnu motīvi.

Otrā sešstāvu māja Ēvalda Valtera ielā 44B sāka tapt 2025. gada vasarā, un plānojam, ka jauno dzīvokļu īpašnieki atslēgas sāks saņemt jau 2026. gada nogalē.

Savukārt trešo māju Ēvalda Valtera ielā 44, kas noslēgs pirmo kvartālu, plānojam sākt būvēt 2026. gada pirmajā ceturksnī. 2026. gada pirmajos mēnešos tiks arī uzsākta dzīvokļu pārdošana šajā ēkā.

Piecās projekta kārtās radīsim piecus labiekārtotus, savstarpēji saskanīgus māju kvartālus, kurus savienos gājēju celiņi, zaļi iekšpagalmi, atpūtas, rotaļu, sporta un citas zonas, aizvedot līdz plašam centrālajam rekreācijas laukumam.

Katrs no iekšējiem māju kvartāliem plānots tā, lai autostāvvietas atrastos ārpusē, savukārt ēku izvietojums veidotu brīvu iekšpagalmu patīkamai, mierpilnai atpūtai un kaimiņattiecību veidošanai bērnu rotaļu laukumos, kā arī sporta un atpūtas zonās ar soliņiem un lapenēm.

Viena no šī ciemata iedzīvotāju īpašajām priekšrocībām būs plaša centrālā rekreācijas teritorija ar multifunkcionāliem sporta laukumiem, kur varēs spēlēt gan pludmales volejbolu, gan basketbolu, kā arī nodarboties ar citām aktivitātēm. Mierīgākai atpūtai būs pieejamas arī zonas ar piknika galdiem, bērnu rotaļu iekārtas, multifitnesa stacija, brīvo svaru zona un tribīnes, kur rīkot iedzīvotāju sapulces.

Līdzīgi, kā citos mūsu projektos, arī šeit dzīvokļa cenā būs iekļauta slēdzama personīgā mantu noliktava, kurā uzglabāt nesezonas lietas. Lai ērti nokļūtu jebkurā stāvā, visās mājās būs lifti, kā arī ģimeņu ikdienu atvieglos slēdzamas ratiņu telpas. Katrā dzīvoklī tiks ierīkota individuālā ventilācija ar rekuperāciju svaigam gaisam visu diennakti. Uz ēku jumtiem būs novietoti saules paneļi, kas samazinās iedzīvotāju elektrības rēķinus.

Pārdomātā plānojuma mājokļus papildinās iekārtā tipa balkoni vai izeja uz personīgo zaļo zonu (daļai pirmo stāvu dzīvokļu). No terases ar zaļo zonu iedzīvotāji varēs ērti nokļūt labiekārtotā iekšpagalmā. Teritorijā saglabāsim vairākus esošos bērzus un priedes, kā arī papildināsim apkaimi ar jauniem kokiem.

Esam parūpējušies arī par to, lai pārvietošanās no/uz jaunajām mājām būtu ērta. Projektā būs ne tikai parastās un ar elektroauto uzlādes iespēju aprīkotas virszemes stāvvietas un vairākas ģimenes autostāvvietas, bet arī divriteņu stāvvietas un velo apkopes stacijas. Daļa autostāvvietu būs pieejama īrei. Teritorijā taps arī koplietošanas skrejriteņu novietne un zona koplietošanas transportlīdzekļiem. Tāpat gar projektu izbūvēsim jaunu ielu, kas savienosies ar posmu virzienā uz Biķernieku ielu.

Projekta tuvumā atrodas vairākas zaļas pastaigu zonas, kur atjaunot spēkus pēc garas darba dienas un pavadīt patīkamus brīžus ar ģimeni.

Lūdzu, ņemiet vērā, ka mājaslapā un citos mārketinga un reklāmas materiālos izmantotajām projekta un dzīvokļu vizualizācijām un plāniem ir informatīvs raksturs. Tur redzamās detaļas var nesakrist ar būvprojektu.
Pēdējo reizi atjaunots: 29.01.2026, 08:38
VIP attīstītājs
Bonava Latvija, SIA logoUz kompāniju
VIP attīstītājs
Bonava Latvija, SIA logoUz kompāniju
Dreiliņi atrodas Rīgas austrumu daļā un robežojas ar Pļavnieku, Purvciema, Mežciema un Juglas, kā arī Ropažu novada teritoriju. Pateicoties izdevīgajam novietojumam un aktīvajai attīstībai, Dreiliņus uzskata par ļoti perspektīvu rajonu, kurā baudīt mierpilnu dzīves ritmu. Tas piedāvā brīnišķīgu iespēju nezaudēt saikni ar Rīgas centrā notiekošo un pilsētas dinamiku, vienlaikus ļaujot būt nepārtrauktā dabas tuvumā un izbaudīt visas tās sniegtās iespējas. Īpaši piemērota šī apkaime būs jaunajām ģimenēm un tiem, kam pilsētā burzma šķiet par skaļu, bet no aprites izkrist negribas.

Plašs jauno mājokļu ciemats strauji augošā apkaimē
Klusā, zaļas teritorijas iekļautā Dreiliņu apkaimes daļā to mūsu līdz šim lielākais jaunais projekts Valterciems. Tas savu skanīgo nosaukumu ieguvis, godājot 2004. gadā atklāto leģendārā aktiera Ēvalda Valtera ielu, kas ved uz plašo daudzdzīvokļu māju ciematu.

Teritorijā starp Ēvalda Valtera un Kaivas ielām piecās kārtās paredzēts uzbūvēt 15 sešstāvu mājas ar kopumā vairāk nekā 800 mūsdienīgiem un energoefektīviem 2 līdz 4 istabu dzīvokļiem.

Pirmo kārtu jeb pirmo iekšējo kvartālu Ēvalda Valtera ielā veidos trīs sešstāvu ēkas ar kopumā 162 dzīvokļiem. To plānojam pabeigt līdz 2027. gada beigām. Savukārt visu projektu ar 15 ēkām paredzēts pabeigt līdz 2033. gadam.

Pirmo sešstāvu māju Ēvalda Valtera ielā 44A, kurai piešķirts nosaukums Čakstes, sākām būvēt 2024. gada rudenī un pabeidzām 2025 gada rudenī, vienlaikus teritorijā atklājot tēlnieka Pētera Ķimša vides objektu Balodis. Gan jaunā ciemata ēkas, gan labiekārtojumu caurvīs pievilcīga, harmoniskas dabas tematika un putnu motīvi.

Otrā sešstāvu māja Ēvalda Valtera ielā 44B sāka tapt 2025. gada vasarā, un plānojam, ka jauno dzīvokļu īpašnieki atslēgas sāks saņemt jau 2026. gada nogalē.

Savukārt trešo māju Ēvalda Valtera ielā 44, kas noslēgs pirmo kvartālu, plānojam sākt būvēt 2026. gada pirmajā ceturksnī. 2026. gada pirmajos mēnešos tiks arī uzsākta dzīvokļu pārdošana šajā ēkā.

Piecās projekta kārtās radīsim piecus labiekārtotus, savstarpēji saskanīgus māju kvartālus, kurus savienos gājēju celiņi, zaļi iekšpagalmi, atpūtas, rotaļu, sporta un citas zonas, aizvedot līdz plašam centrālajam rekreācijas laukumam.

Katrs no iekšējiem māju kvartāliem plānots tā, lai autostāvvietas atrastos ārpusē, savukārt ēku izvietojums veidotu brīvu iekšpagalmu patīkamai, mierpilnai atpūtai un kaimiņattiecību veidošanai bērnu rotaļu laukumos, kā arī sporta un atpūtas zonās ar soliņiem un lapenēm.

Viena no šī ciemata iedzīvotāju īpašajām priekšrocībām būs plaša centrālā rekreācijas teritorija ar multifunkcionāliem sporta laukumiem, kur varēs spēlēt gan pludmales volejbolu, gan basketbolu, kā arī nodarboties ar citām aktivitātēm. Mierīgākai atpūtai būs pieejamas arī zonas ar piknika galdiem, bērnu rotaļu iekārtas, multifitnesa stacija, brīvo svaru zona un tribīnes, kur rīkot iedzīvotāju sapulces.

Līdzīgi, kā citos mūsu projektos, arī šeit dzīvokļa cenā būs iekļauta slēdzama personīgā mantu noliktava, kurā uzglabāt nesezonas lietas. Lai ērti nokļūtu jebkurā stāvā, visās mājās būs lifti, kā arī ģimeņu ikdienu atvieglos slēdzamas ratiņu telpas. Katrā dzīvoklī tiks ierīkota individuālā ventilācija ar rekuperāciju svaigam gaisam visu diennakti. Uz ēku jumtiem būs novietoti saules paneļi, kas samazinās iedzīvotāju elektrības rēķinus.

Pārdomātā plānojuma mājokļus papildinās iekārtā tipa balkoni vai izeja uz personīgo zaļo zonu (daļai pirmo stāvu dzīvokļu). No terases ar zaļo zonu iedzīvotāji varēs ērti nokļūt labiekārtotā iekšpagalmā. Teritorijā saglabāsim vairākus esošos bērzus un priedes, kā arī papildināsim apkaimi ar jauniem kokiem.

Esam parūpējušies arī par to, lai pārvietošanās no/uz jaunajām mājām būtu ērta. Projektā būs ne tikai parastās un ar elektroauto uzlādes iespēju aprīkotas virszemes stāvvietas un vairākas ģimenes autostāvvietas, bet arī divriteņu stāvvietas un velo apkopes stacijas. Daļa autostāvvietu būs pieejama īrei. Teritorijā taps arī koplietošanas skrejriteņu novietne un zona koplietošanas transportlīdzekļiem. Tāpat gar projektu izbūvēsim jaunu ielu, kas savienosies ar posmu virzienā uz Biķernieku ielu.

Projekta tuvumā atrodas vairākas zaļas pastaigu zonas, kur atjaunot spēkus pēc garas darba dienas un pavadīt patīkamus brīžus ar ģimeni.

Lūdzu, ņemiet vērā, ka mājaslapā un citos mārketinga un reklāmas materiālos izmantotajām projekta un dzīvokļu vizualizācijām un plāniem ir informatīvs raksturs. Tur redzamās detaļas var nesakrist ar būvprojektu.
ĪPAŠUMA ATSKAITE
  • Informācija par īpašumu, vēsturiskie darījumi, sludinājumi
  • Dzīvokļa vērtība, kas iegūta no līdzīgiem darījumiem
  • Zemesgrāmatas informācija
Raksturojums
ID
4272915
Istabas
2
Platība
38.7 m²
Ārtelpa
Balkons
Ārtelpas platība
3.2 m²
Stāvs
1
Stāvi
6
Cena
Cena
78 000 €
Cena / m²
2015,50  €/m²
Vispārīgi
Mājas sērija
jaunais projekts
Lifts

Hipotekārā kredīta kalkulators

307 €/mēn.

Pirmā iemaksa11 700 €(15%)
Termiņš
Pieteikties konsultācijai
Pieejamie pakalpojumi
Uzkopšana
Remonts
Mēbeļu/tehnikas pārvadājumi
Arhitekts
Interjera dizains
Jurista konsultācija
VIP attīstītājs

Mareks Gražuls

Uz profilu
Bonava Latvija, SIA