Ievietot sludinājumu

145 000 €
2 408.64 €/m²
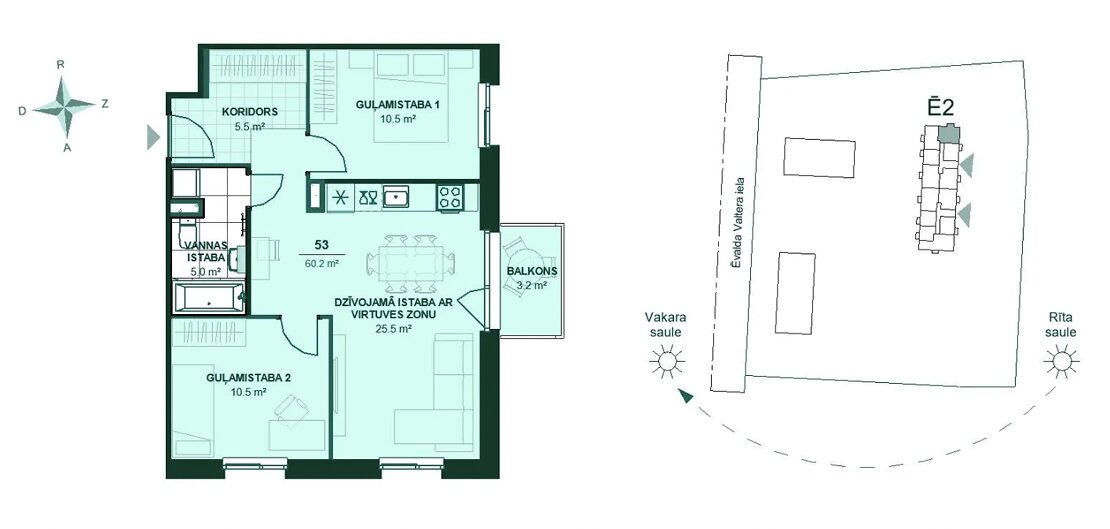
Ēvalda Valtera iela 44B-53, Dreiliņi
Rīga

  • 60.2
  • 3
  • 3/6
Jaunais projekts

560 €/mēn.

Pirmā iemaksa21 750 €(15%)
Termiņš
Pieteikties konsultācijai
Klusā, zaļas teritorijas iekļautā Dreiliņu apkaimes daļā taps mūsu līdz šim lielākais jaunais projekts “Valterciems”. Tas savu skanīgo nosaukumu ieguvis, godājot 2004. gadā atklāto leģendārā aktiera Ēvalda Valtera ielu, kas vedīs uz plašo daudzdzīvokļu māju ciematu.

Pirmo kārtu jeb pirmo iekšējo kvartālu Ēvalda Valtera ielā veidos trīs sešstāvu ēkas ar kopumā 162 dzīvokļiem. Pirmās ēkas mājokļu pārdošanu un būvniecību uzsākām 2024. gadā. Savukārt visu projektu paredzēts pabeigt līdz 2033. gadam.

Projekta otro māju Ēvalda Valtera ielā 44B veidos 72 dzīvokļi sešos stāvos. Šīs ēkas mājokļu pārdošanu un būvniecību plānojam sākt 2025. gada vasarā, lai 2026. gada nogalē nodotu jauno dzīvokļu atslēgas iemītniekiem.

Piecās projekta kārtās tiks radīti pieci labiekārtoti, savstarpēji saskanīgi māju kvartāli, kurus caurvīs gājēju celiņi, zaļi iekšpagalmi, atpūtas, rotaļu, sporta un citas zonas, kas savienosies plašā centrālajā rekreācijas laukumā. Gan jaunā ciemata ēkās, gan labiekārtojumā būs redzama pievilcīga, harmoniskas dabas tematika un putnu motīvi.

Katrs no iekšējiem māju kvartāliem plānots tā, lai autostāvvietas atrastos ārpusē, savukārt ēku izvietojums veidotu brīvu iekšpagalmu patīkamai, mierpilnai atpūtai un kaimiņattiecību veidošanai bērnu rotaļu laukumos, kā arī sporta un atpūtas zonās ar soliņiem un lapenēm.

Viena no šī ciemata iedzīvotāju īpašajām priekšrocībām būs plaša centrālā rekreācijas teritorija ar multifunkcionāliem sporta laukumiem, kur varēs spēlēt gan pludmales volejbolu, gan basketbolu, kā arī nodarboties ar citām aktivitātēm. Mierīgākai atpūtai būs pieejamas arī zonas ar piknika galdiem, bērnu rotaļu iekārtas, multifitnesa stacija, brīvo svaru zona un tribīnes, kur rīkot iedzīvotāju sapulces.

Līdzīgi, kā citos mūsu projektos, arī šeit dzīvokļa cenā būs iekļauta slēdzama personīgā mantu noliktava, kurā uzglabāt nesezonas lietas. Lai ērti nokļūtu jebkurā stāvā, visās mājās būs lifti, kā arī ģimeņu ikdienu atvieglos slēdzamas ratiņu telpas. Katrā dzīvoklī tiks ierīkota individuālā ventilācija ar rekuperāciju svaigam gaisam visu diennakti. Uz ēku jumtiem būs novietoti saules paneļi, kas samazinās iedzīvotāju elektrības rēķinus.

Pārdomātā plānojuma mājokļus papildinās iekārtā tipa balkoni vai izeja uz personīgo zaļo zonu (daļai pirmo stāvu dzīvokļu). No terases ar zaļo zonu iedzīvotāji varēs ērti nokļūt labiekārtotā iekšpagalmā. Teritorijā saglabāsim vairākus esošos bērzus un priedes, kā arī papildināsim apkaimi ar jauniem kokiem.

Esam parūpējušies arī par to, lai pārvietošanās no/uz jaunajām mājām būtu ērta. Projektā būs ne tikai parastās un ar elektroauto uzlādes iespēju aprīkotas virszemes stāvvietas un vairākas ģimenes autostāvvietas, bet arī divriteņu stāvvietas un velo apkopes stacijas. Daļa autostāvvietu būs pieejama īrei. Teritorijā taps arī koplietošanas skrejriteņu novietne un zona koplietošanas transportlīdzekļiem. Tāpat gar projektu izbūvēsim jaunu ielu, kas savienosies ar posmu virzienā uz Biķernieku ielu.

Projekta tuvumā atrodas vairākas zaļas pastaigu zonas, kur atjaunot spēkus pēc garas darba dienas un pavadīt patīkamus brīžus ar ģimeni. Savukārt, lai atvieglotu rūpes par četrkājainajiem mīluļiem, projektā tiks ierīkots nožogots suņu pastaigu laukums.

Lūdzu, ņemiet vērā, ka apskatāmajām vizualizācijām ir informatīvs raksturs, jo projekts vēl ir izstrādes stadijā.
Pēdējo reizi atjaunots: 28.01.2026, 12:41
VIP attīstītājs
Bonava Latvija, SIA logoUz kompāniju
Klusā, zaļas teritorijas iekļautā Dreiliņu apkaimes daļā taps mūsu līdz šim lielākais jaunais projekts “Valterciems”. Tas savu skanīgo nosaukumu ieguvis, godājot 2004. gadā atklāto leģendārā aktiera Ēvalda Valtera ielu, kas vedīs uz plašo daudzdzīvokļu māju ciematu.

Pirmo kārtu jeb pirmo iekšējo kvartālu Ēvalda Valtera ielā veidos trīs sešstāvu ēkas ar kopumā 162 dzīvokļiem. Pirmās ēkas mājokļu pārdošanu un būvniecību uzsākām 2024. gadā. Savukārt visu projektu paredzēts pabeigt līdz 2033. gadam.

Projekta otro māju Ēvalda Valtera ielā 44B veidos 72 dzīvokļi sešos stāvos. Šīs ēkas mājokļu pārdošanu un būvniecību plānojam sākt 2025. gada vasarā, lai 2026. gada nogalē nodotu jauno dzīvokļu atslēgas iemītniekiem.

Piecās projekta kārtās tiks radīti pieci labiekārtoti, savstarpēji saskanīgi māju kvartāli, kurus caurvīs gājēju celiņi, zaļi iekšpagalmi, atpūtas, rotaļu, sporta un citas zonas, kas savienosies plašā centrālajā rekreācijas laukumā. Gan jaunā ciemata ēkās, gan labiekārtojumā būs redzama pievilcīga, harmoniskas dabas tematika un putnu motīvi.

Katrs no iekšējiem māju kvartāliem plānots tā, lai autostāvvietas atrastos ārpusē, savukārt ēku izvietojums veidotu brīvu iekšpagalmu patīkamai, mierpilnai atpūtai un kaimiņattiecību veidošanai bērnu rotaļu laukumos, kā arī sporta un atpūtas zonās ar soliņiem un lapenēm.

Viena no šī ciemata iedzīvotāju īpašajām priekšrocībām būs plaša centrālā rekreācijas teritorija ar multifunkcionāliem sporta laukumiem, kur varēs spēlēt gan pludmales volejbolu, gan basketbolu, kā arī nodarboties ar citām aktivitātēm. Mierīgākai atpūtai būs pieejamas arī zonas ar piknika galdiem, bērnu rotaļu iekārtas, multifitnesa stacija, brīvo svaru zona un tribīnes, kur rīkot iedzīvotāju sapulces.

Līdzīgi, kā citos mūsu projektos, arī šeit dzīvokļa cenā būs iekļauta slēdzama personīgā mantu noliktava, kurā uzglabāt nesezonas lietas. Lai ērti nokļūtu jebkurā stāvā, visās mājās būs lifti, kā arī ģimeņu ikdienu atvieglos slēdzamas ratiņu telpas. Katrā dzīvoklī tiks ierīkota individuālā ventilācija ar rekuperāciju svaigam gaisam visu diennakti. Uz ēku jumtiem būs novietoti saules paneļi, kas samazinās iedzīvotāju elektrības rēķinus.

Pārdomātā plānojuma mājokļus papildinās iekārtā tipa balkoni vai izeja uz personīgo zaļo zonu (daļai pirmo stāvu dzīvokļu). No terases ar zaļo zonu iedzīvotāji varēs ērti nokļūt labiekārtotā iekšpagalmā. Teritorijā saglabāsim vairākus esošos bērzus un priedes, kā arī papildināsim apkaimi ar jauniem kokiem.

Esam parūpējušies arī par to, lai pārvietošanās no/uz jaunajām mājām būtu ērta. Projektā būs ne tikai parastās un ar elektroauto uzlādes iespēju aprīkotas virszemes stāvvietas un vairākas ģimenes autostāvvietas, bet arī divriteņu stāvvietas un velo apkopes stacijas. Daļa autostāvvietu būs pieejama īrei. Teritorijā taps arī koplietošanas skrejriteņu novietne un zona koplietošanas transportlīdzekļiem. Tāpat gar projektu izbūvēsim jaunu ielu, kas savienosies ar posmu virzienā uz Biķernieku ielu.

Projekta tuvumā atrodas vairākas zaļas pastaigu zonas, kur atjaunot spēkus pēc garas darba dienas un pavadīt patīkamus brīžus ar ģimeni. Savukārt, lai atvieglotu rūpes par četrkājainajiem mīluļiem, projektā tiks ierīkots nožogots suņu pastaigu laukums.

Lūdzu, ņemiet vērā, ka apskatāmajām vizualizācijām ir informatīvs raksturs, jo projekts vēl ir izstrādes stadijā.
ĪPAŠUMA ATSKAITE
  • Informācija par īpašumu, vēsturiskie darījumi, sludinājumi
  • Dzīvokļa vērtība, kas iegūta no līdzīgiem darījumiem
  • Zemesgrāmatas informācija
Raksturojums
ID
7830216
Istabas
3
Platība
60.2 m²
Ārtelpa
Balkons
Ārtelpas platība
3.2 m²
Stāvs
3
Stāvi
6
Cena
Cena
145 000 €
Cena / m²
2408,64  €/m²
Vispārīgi
Mājas sērija
jaunais projekts
Lifts

Hipotekārā kredīta kalkulators

560 €/mēn.

Pirmā iemaksa21 750 €(15%)
Termiņš
Pieteikties konsultācijai
Pieejamie pakalpojumi
Uzkopšana
Remonts
Mēbeļu/tehnikas pārvadājumi
Arhitekts
Interjera dizains
Jurista konsultācija
VIP attīstītājs

Lauma Meimere

Uz profilu
Bonava Latvija, SIA