Ievietot sludinājumu

143 600 €
2 377.09 €/m²
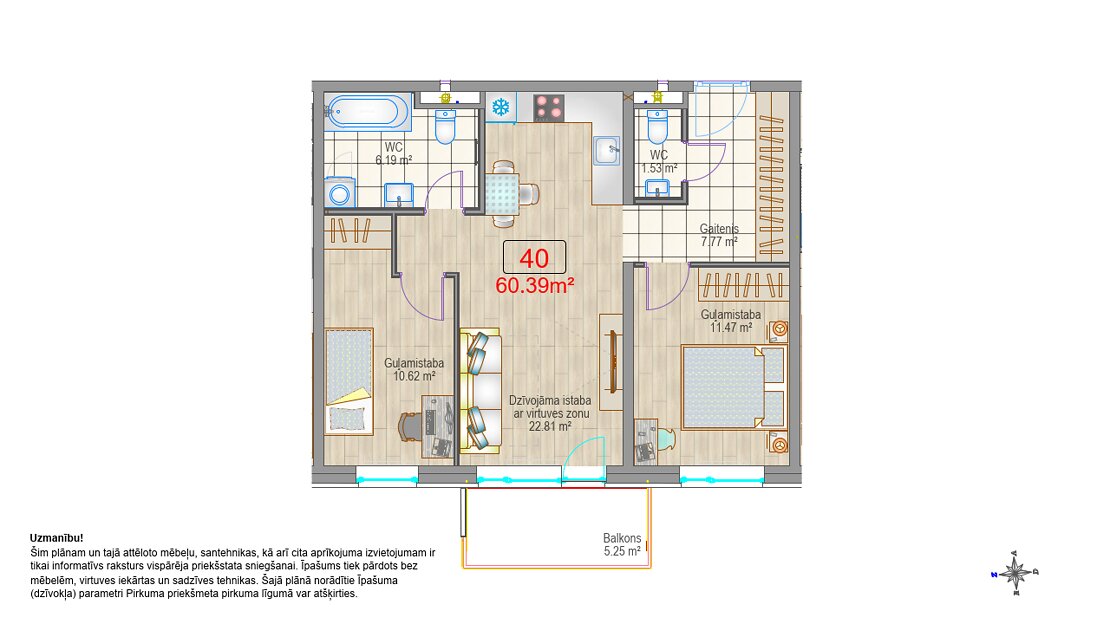
Kaivas iela 48b-B 40, Dreiliņi
Rīga

  • 60.41
  • 3
  • 1/6
Jaunais projekts

558 €/mēn.

Pirmā iemaksa21 540 €(15%)
Termiņš
Pieteikties konsultācijai
2025.gada sākumā uzsākta Kaivas kvartāla 2. mājas būvniecība, turpinot jaunā kvartāla attīstību. Top 72 jauni dzīvokļi ar pilnu apdari. Jauns sākums jaunās mājās. Laimīgiem mirkļiem kopā!

Ikvienam ir iespēja izvēlēties kādu no 2-4-istabu dzīvokļiem. Ēkas forma tiek veidota taisnstūra no divām sekcijām, kas apvienotas ar kopējo pagrabstāvu, kur atrodas pazemes autostāvvietas un noliktavas. Ap dzīvojamo ēku būs labiekārtota teritorija, kas paredzēta iedzīvotāju atpūtai.

Pievērsiet uzmanību plānojumiem:
4- istabu dzīvoklī – atsevišķi nodalīta guļamzona, noliktava un īpaši gaišā viesistaba ar diviem logiem, logi uz divām pusēm.
3-istabu dzīvoklī – virtuve nišā un ietilpīgs skapis gaitenī, lielākajos dzīvokļos divi sanmezgli.
2- istabu dzīvoklī – virtuve nišā, klasisks YIT divistabu dzīvokļa plānojums, gaitenī plaša vieta skapim, atsevišķos plānojumos vannasistabā duša.
Pēdējo reizi atjaunots: 26.01.2026, 12:50
VIP attīstītājs
YIT LATVIJA, SIA logoUz kompāniju
2025.gada sākumā uzsākta Kaivas kvartāla 2. mājas būvniecība, turpinot jaunā kvartāla attīstību. Top 72 jauni dzīvokļi ar pilnu apdari. Jauns sākums jaunās mājās. Laimīgiem mirkļiem kopā!

Ikvienam ir iespēja izvēlēties kādu no 2-4-istabu dzīvokļiem. Ēkas forma tiek veidota taisnstūra no divām sekcijām, kas apvienotas ar kopējo pagrabstāvu, kur atrodas pazemes autostāvvietas un noliktavas. Ap dzīvojamo ēku būs labiekārtota teritorija, kas paredzēta iedzīvotāju atpūtai.

Pievērsiet uzmanību plānojumiem:
4- istabu dzīvoklī – atsevišķi nodalīta guļamzona, noliktava un īpaši gaišā viesistaba ar diviem logiem, logi uz divām pusēm.
3-istabu dzīvoklī – virtuve nišā un ietilpīgs skapis gaitenī, lielākajos dzīvokļos divi sanmezgli.
2- istabu dzīvoklī – virtuve nišā, klasisks YIT divistabu dzīvokļa plānojums, gaitenī plaša vieta skapim, atsevišķos plānojumos vannasistabā duša.
ĪPAŠUMA ATSKAITE
  • Informācija par īpašumu, vēsturiskie darījumi, sludinājumi
  • Dzīvokļa vērtība, kas iegūta no līdzīgiem darījumiem
  • Zemesgrāmatas informācija
Raksturojums
ID
4758760
Īpašuma stāvoklis
Jauns
Istabas
3
Platība
60.41 m²
Ārtelpa
Balkons
Stāvs
1
Stāvi
6
Īpašumtiesības
reģistrēts īpašumu reģistrā
Cena
Cena
143 600 €
Cena / m²
2377,09  €/m²
Vispārīgi
Celšanas gads
2026
Lifts

Hipotekārā kredīta kalkulators

558 €/mēn.

Pirmā iemaksa21 540 €(15%)
Termiņš
Pieteikties konsultācijai
Pieejamie pakalpojumi
Uzkopšana
Remonts
Mēbeļu/tehnikas pārvadājumi
Arhitekts
Interjera dizains
Jurista konsultācija
VIP attīstītājs

Liene Andrule

Uz profilu
YIT LATVIJA, SIA