Ievietot sludinājumu

118 900 €
2 733.33 €/m²
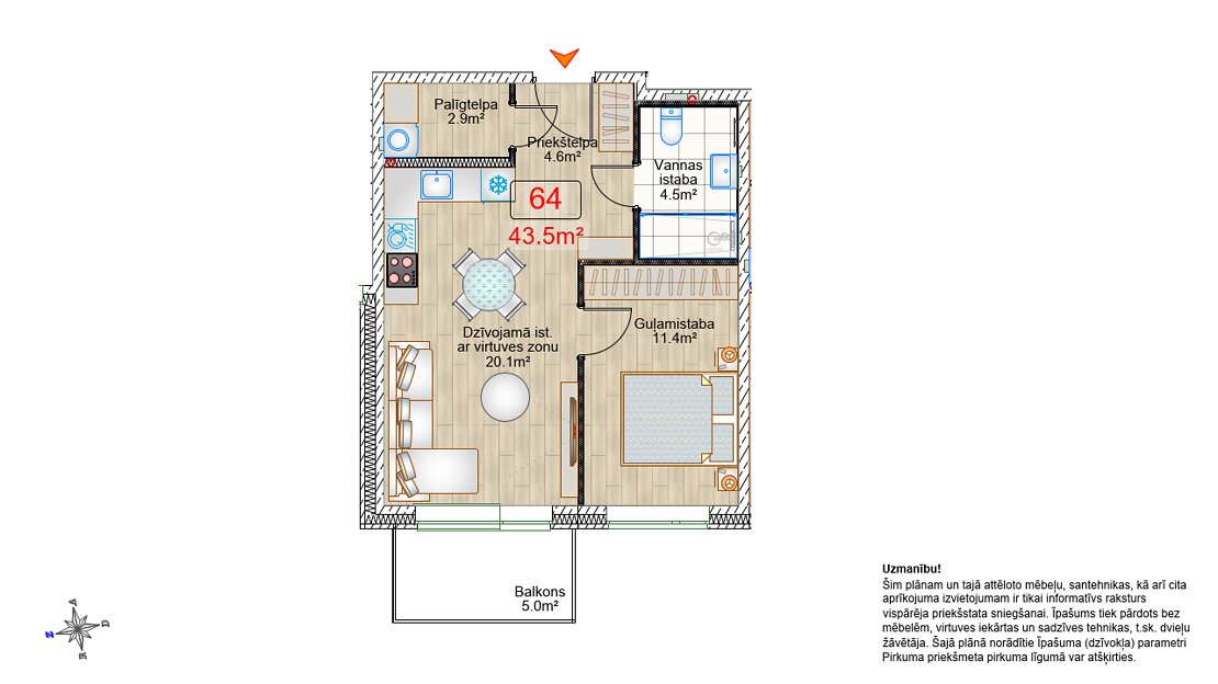
Lielvārdes iela 132-A 64, Purvciems
Rīga

  • 43.5
  • 2
  • 7/7
Jaunais projekts

462 €/mēn.

Pirmā iemaksa17 835 €(15%)
Termiņš
Pieteikties konsultācijai
Turpinot iecienītā projekta Silvas nami attīstību, pavisam netālu uzsākta jauna daudzdzīvokļu dzīvojamā nama būvniecība Lielvārdes ielā 132, Rīgā. Kompleksu tagad papildina jaunā septiņu stāvu māja ar 64 divu un trīs istabu dzīvokļiem ar iekštelpu platību no 43,5 m² līdz 61 m². Katram dzīvoklim paredzēts plašs balkons, bet pirmajā stāvā – privātas
terases. Visi dzīvokļi tiks piedāvāti ar pilnu apdari, aprīkoti ar rekuperācijas sistēmu un īpaši ērtu saimniecības telpu. Papildu ērtībām pirmajā stāvā pieejamas noliktavas sezonālo lietu uzglabāšanai. Par autostāvvietu iegādes iespējām, aicinām sazināties ar YIT pārdošanas komandu.
Pēdējo reizi atjaunots: 13.01.2026, 22:05
VIP attīstītājs
YIT LATVIJA, SIA logoUz kompāniju
Turpinot iecienītā projekta Silvas nami attīstību, pavisam netālu uzsākta jauna daudzdzīvokļu dzīvojamā nama būvniecība Lielvārdes ielā 132, Rīgā. Kompleksu tagad papildina jaunā septiņu stāvu māja ar 64 divu un trīs istabu dzīvokļiem ar iekštelpu platību no 43,5 m² līdz 61 m². Katram dzīvoklim paredzēts plašs balkons, bet pirmajā stāvā – privātas
terases. Visi dzīvokļi tiks piedāvāti ar pilnu apdari, aprīkoti ar rekuperācijas sistēmu un īpaši ērtu saimniecības telpu. Papildu ērtībām pirmajā stāvā pieejamas noliktavas sezonālo lietu uzglabāšanai. Par autostāvvietu iegādes iespējām, aicinām sazināties ar YIT pārdošanas komandu.
ĪPAŠUMA ATSKAITE
  • Informācija par īpašumu, vēsturiskie darījumi, sludinājumi
  • Dzīvokļa vērtība, kas iegūta no līdzīgiem darījumiem
  • Zemesgrāmatas informācija
Raksturojums
ID
3192770
Īpašuma stāvoklis
Jauns
Istabas
2
Platība
43.5 m²
Ārtelpa
Balkons
Stāvs
7
Stāvi
7
Īpašumtiesības
reģistrēts īpašumu reģistrā
Cena
Cena
118 900 €
Cena / m²
2733,33  €/m²
Vispārīgi
Energoefektivitātes sertifikāts
A
Celšanas gads
2026
Lifts

Hipotekārā kredīta kalkulators

462 €/mēn.

Pirmā iemaksa17 835 €(15%)
Termiņš
Pieteikties konsultācijai
Pieejamie pakalpojumi
Uzkopšana
Remonts
Mēbeļu/tehnikas pārvadājumi
Arhitekts
Interjera dizains
Jurista konsultācija
VIP attīstītājs

Liene Andrule

Uz profilu
YIT LATVIJA, SIA