Ievietot sludinājumu

166 000 €
2 647.53 €/m²
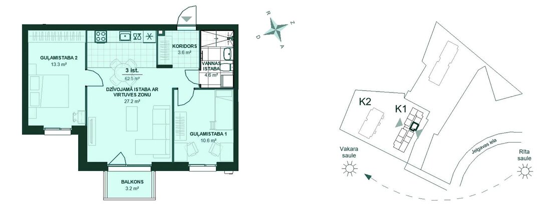
Jelgavas iela 56-K1-72, Torņakalns
Rīga

  • 62.7
  • 3
  • 6/6
Jaunais projekts

642 €/mēn.

Pirmā iemaksa24 900 €(15%)
Termiņš
Pieteikties konsultācijai
Jūsu jaunā mājvieta vēsturiskas apkaimes sirdī
Torņakalns, agrāk saukts arī par Torensbergu, jau kopš 19. gadsimta bijis pazīstams ne tikai ar savām muižiņām, bet arī vairākām manufaktūrām un fabrikām. Uz apkaimes sirdī esošo Arkādijas parku pilsētnieki savulaik devušies, lai atpūstos un baudītu gleznaino ainavu. Arī mūsdienās apkārtne ar parku, Mārupīti, Māras dīķi un Torņakalna baznīcu ir iecienīta pastaigu un atpūtas vieta.

Apvienojot dabas skaistumu, vēsturisko mantojumu un mūsdienīgu pilsētvidi, Torņakalns uzrunā gan ģimenes ar bērniem, jo netālu atrodas skolas, bērnudārzi un medicīnas iestādes, gan arī ikvienu, kas novērtē iespēju būt netālu no pilsētas centra un baudīt attīstītu infrastruktūru, blakus esošos tirdzniecības centrus, sporta un atpūtas vietas.

Par mājvietu
Apkaimē, kurā senāk atradusies V. Hartmaņa “Rīgas Eļļas Spiestuve”, Vienības gatves un Jelgavas ielas ieskauts, taps mūsdienīgs un pievilcīgs jaunais projekts. Iedvesmojoties un godājot apkārtnes vēsturi, mājvieta nosaukta par “Hartmaņa kvartālu”.

Projektā ar astoņām ēkām kopumā būs vairāk nekā 400 mūsdienīgi un ērti 2 līdz 4 istabu dzīvokļi.

Pirmajā kārtā Jelgavas ielā 51, kur pārdošanu sākām jau 2024. gada rudenī, top viena sešstāvu ēka ar 72 divu līdz četru istabu dzīvokļiem. Ēkas būvniecību sākām 2024. gada nogalē un plānojam, ka 2026. gada vasarā sāksim nodot dzīvokļu atslēgas jaunajiem īpašniekiem.

Pirmās ēkas pagrabstāvā atradīsies bērnu ratiņu telpa, kā arī iemītnieki varēs izmantot darbnīcu ar dušu un instrumentiem velosipēdu apkopei.

Katram dzīvoklim pirmajā kārtā būs savs balkons, uz kura baudīt atpūtu. Tāpat ikvienā mājoklī ierīkosim individuālo ventilācijas sistēmu ar rekuperāciju svaigam gaisam visu diennakti. Katrā stāvā būs viens četristabu dzīvoklis.

Atdzimstot senatnīgajai teritorijai, tajā padomāts par visu nepieciešamo patīkamai ikdienai – ikvienam dzīvoklim būs cenā iekļauta mantu noliktava, ēkās būs lifti nokļūšanai jebkurā stāvā, kā arī telpas bērnu ratiņiem. Savukārt no māju augšējiem stāviem iedzīvotāji varēs baudīt skaistu skatu uz Rīgas torņiem un tiltiem.

Pagalmos veidotais pievilcīgais un pārdomātais labiekārtojums ne tikai savienos kvartāla mājas ar atpūtas un sporta zonām un rotaļu laukumiem, bet arī nodrošinās patīkamu atmosfēru kopīgai laika pavadīšanai ar kaimiņiem. Lielākajai daļai mājokļu būs iespējams iegādāties autostāvvietu.

Tiem, kam tuvs aktīvs dzīvesveids, noderēs velosipēdu novietnes, kā arī būs pieejamas elektroauto uzlādes vietas. Uz jumta ierīkotie saules paneļi samazinās iedzīvotāju elektrības rēķinus.

Lūdzu, ņemiet vērā, ka mājaslapā un citos mārketinga un reklāmas materiālos izmantotajām projekta un dzīvokļu vizualizācijām un plāniem ir informatīvs raksturs. Tur redzamās detaļas var nesakrist ar būvprojektu.
Pēdējo reizi atjaunots: 22.01.2026, 08:49
VIP attīstītājs
Bonava Latvija, SIA logoUz kompāniju
VIP attīstītājs
Bonava Latvija, SIA logoUz kompāniju
Jūsu jaunā mājvieta vēsturiskas apkaimes sirdī
Torņakalns, agrāk saukts arī par Torensbergu, jau kopš 19. gadsimta bijis pazīstams ne tikai ar savām muižiņām, bet arī vairākām manufaktūrām un fabrikām. Uz apkaimes sirdī esošo Arkādijas parku pilsētnieki savulaik devušies, lai atpūstos un baudītu gleznaino ainavu. Arī mūsdienās apkārtne ar parku, Mārupīti, Māras dīķi un Torņakalna baznīcu ir iecienīta pastaigu un atpūtas vieta.

Apvienojot dabas skaistumu, vēsturisko mantojumu un mūsdienīgu pilsētvidi, Torņakalns uzrunā gan ģimenes ar bērniem, jo netālu atrodas skolas, bērnudārzi un medicīnas iestādes, gan arī ikvienu, kas novērtē iespēju būt netālu no pilsētas centra un baudīt attīstītu infrastruktūru, blakus esošos tirdzniecības centrus, sporta un atpūtas vietas.

Par mājvietu
Apkaimē, kurā senāk atradusies V. Hartmaņa “Rīgas Eļļas Spiestuve”, Vienības gatves un Jelgavas ielas ieskauts, taps mūsdienīgs un pievilcīgs jaunais projekts. Iedvesmojoties un godājot apkārtnes vēsturi, mājvieta nosaukta par “Hartmaņa kvartālu”.

Projektā ar astoņām ēkām kopumā būs vairāk nekā 400 mūsdienīgi un ērti 2 līdz 4 istabu dzīvokļi.

Pirmajā kārtā Jelgavas ielā 51, kur pārdošanu sākām jau 2024. gada rudenī, top viena sešstāvu ēka ar 72 divu līdz četru istabu dzīvokļiem. Ēkas būvniecību sākām 2024. gada nogalē un plānojam, ka 2026. gada vasarā sāksim nodot dzīvokļu atslēgas jaunajiem īpašniekiem.

Pirmās ēkas pagrabstāvā atradīsies bērnu ratiņu telpa, kā arī iemītnieki varēs izmantot darbnīcu ar dušu un instrumentiem velosipēdu apkopei.

Katram dzīvoklim pirmajā kārtā būs savs balkons, uz kura baudīt atpūtu. Tāpat ikvienā mājoklī ierīkosim individuālo ventilācijas sistēmu ar rekuperāciju svaigam gaisam visu diennakti. Katrā stāvā būs viens četristabu dzīvoklis.

Atdzimstot senatnīgajai teritorijai, tajā padomāts par visu nepieciešamo patīkamai ikdienai – ikvienam dzīvoklim būs cenā iekļauta mantu noliktava, ēkās būs lifti nokļūšanai jebkurā stāvā, kā arī telpas bērnu ratiņiem. Savukārt no māju augšējiem stāviem iedzīvotāji varēs baudīt skaistu skatu uz Rīgas torņiem un tiltiem.

Pagalmos veidotais pievilcīgais un pārdomātais labiekārtojums ne tikai savienos kvartāla mājas ar atpūtas un sporta zonām un rotaļu laukumiem, bet arī nodrošinās patīkamu atmosfēru kopīgai laika pavadīšanai ar kaimiņiem. Lielākajai daļai mājokļu būs iespējams iegādāties autostāvvietu.

Tiem, kam tuvs aktīvs dzīvesveids, noderēs velosipēdu novietnes, kā arī būs pieejamas elektroauto uzlādes vietas. Uz jumta ierīkotie saules paneļi samazinās iedzīvotāju elektrības rēķinus.

Lūdzu, ņemiet vērā, ka mājaslapā un citos mārketinga un reklāmas materiālos izmantotajām projekta un dzīvokļu vizualizācijām un plāniem ir informatīvs raksturs. Tur redzamās detaļas var nesakrist ar būvprojektu.
ĪPAŠUMA ATSKAITE
  • Informācija par īpašumu, vēsturiskie darījumi, sludinājumi
  • Dzīvokļa vērtība, kas iegūta no līdzīgiem darījumiem
  • Zemesgrāmatas informācija
Raksturojums
ID
1271055
Istabas
3
Platība
62.7 m²
Ārtelpa
Balkons
Ārtelpas platība
3.2 m²
Stāvs
6
Stāvi
6
Cena
Cena
166 000 €
Cena / m²
2647,53  €/m²
Vispārīgi
Mājas sērija
jaunais projekts
Papildu informācija

Hipotekārā kredīta kalkulators

642 €/mēn.

Pirmā iemaksa24 900 €(15%)
Termiņš
Pieteikties konsultācijai
Pieejamie pakalpojumi
Uzkopšana
Remonts
Mēbeļu/tehnikas pārvadājumi
Arhitekts
Interjera dizains
Jurista konsultācija
VIP attīstītājs

Elīna Lube

Uz profilu
Bonava Latvija, SIA