Place ad

2 000 €
13.23 €/m²
Mežaparka prospekts 1, Dzintari
Jūrmala

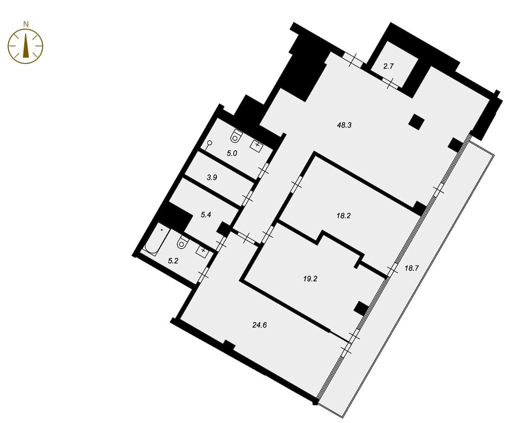
  • 151.2
  • 4
  • 3/8
New Project


An apartment with a full finishing, fully equipped for a comfortable stay with everything you need.

The apartment goes with everything you need and is fully prepared for a comfortable stay.
Protected green and recreation area. There is a parking place for cars.
Convenient location. Nearby are shops, a concert hall, the sea and a recreation park. Seaside. To the sea 5 minutes walk.
Ad info updated: 19.01.2026, 08:40
Jurmala Park House logoCompany profile


An apartment with a full finishing, fully equipped for a comfortable stay with everything you need.

The apartment goes with everything you need and is fully prepared for a comfortable stay.
Protected green and recreation area. There is a parking place for cars.
Convenient location. Nearby are shops, a concert hall, the sea and a recreation park. Seaside. To the sea 5 minutes walk.
Details
ID
4343015
Rooms
4
Size
151.2 m²
Balcony
terrace
Balcony size
18.7 m²
Floor
3
Total floors
8
Security system
secure guard
video cameras
Cost
Price
2000 €
Price / m²
13,23  €/m²
Building
House type
New project
Elevator
Yes
Parking
designated parking on property
underground garage
Additional info
Available services
Cleaning
Refurbishment
Furniture/appliances transportation
Architect
Interior design
Legal consultation
PRO PARTNER

Аpartamentu īre

View profile
Jurmala Park House
5.0